Bilder & planritningar



Föreningens tre hus består av punkthus i fyra plan med vidbyggda radhus i två plan.
På bottenvåningen ligger även souterränglägenheter i två av husen,
dessa har ungefär samma planlösning som lägenheterna med fyra rum och kök.

Se Bilder från Brf Hanken HÄR

Ritningarna är byggritningar skannade med en A4-skanner, därför är kvaliteten inte den högsta.
Klicka på bilderna nedan för att se en fullstor version.

Punkthus, lägenheter med två rum och kök,
mindre typen

Placeholder image 

Punkthus, lägenheter med två rum och kök,
större typen

Placeholder image 

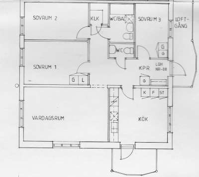
Punkthus, lägenheter med tre rum och kök

Placeholder image  

Punkthus, lägenhet fyra rum och kök

Placeholder image  

Radhus, plan 1

Placeholder image  

Radhus, plan 2

Placeholder image  

Adress:

Brf Hanken
Fannagatan 30 D, 3 tr
749 41 ENKÖPING

 

Kontakt:

BRF Hankens Styrelse
Ordförande: Lennart Andersson 0731-80 34 75

Teknisk och ekonomisk förvaltning:
Sveriges Bostadsrättscentrum SBC
Kundtjänst, 0771-722 722, vardagar kl. 07-21

 

Felanmälan:

SBC Kundtjänst:
0771-722 722, vardagar kl. 07-21
Relita: 
0171-211 10 vardagar 21-07, samt helger


Copyright BRF Hanken © 2016 · Web-design av K&N konsult